Godevaert Montensstraat 28

BREDA

verkocht

Verkocht

Geinteresseerd?

Omschrijving

Dé charme van de Godevaert Montensstraat – en nu te koop!

Wonen in hartje Breda, in een karakteristiek huis met volop mogelijkheden? Dan is deze verrassend ruime woning aan de Godevaert Montensstraat écht iets voor jou.
Gelegen in een rustige straat, letterlijk om de hoek van de Nieuwe Ginnekenstraat en het Van Coothplein, waar je geniet van terrasjes, fijne restaurants én natuurlijk dat vers geschepte ijs op een zonnige dag.
En met de winkelstraten van het stadscentrum binnen handbereik, ervaar je hier het beste van twee werelden: rust én reuring.

Deze sfeervolle stadswoning uit ca. 1901 heeft een fijne indeling, een diepe stadstuin met achterom, en een charmante uitstraling die meteen in het oog springt. Hoewel de basis goed is, mag je wel rekening houden met modernisatie. Maar dat betekent ook: de kans om er écht jouw thuis van te maken.
De woning is uitermate geschikt voor wie op zoek is naar karakter én mogelijkheden om te vernieuwen.

Bouwkwaliteit
De woning is traditioneel gebouwd en voorzien van een geïsoleerde schildkap. De kozijnen zijn deels uitgevoerd in hout en deels in kunststof, en er is grotendeels dubbel glas aanwezig. Met een energielabel D is de basis al prima, maar er is nog volop ruimte om te verduurzamen – mét bijbehorende subsidiemogelijkheden. Voor verwarming en warm water is een gasgestookte HR-combiketel aanwezig van het merk Nefit (bouwjaar 2013).

Indeling

Begane grond
Je komt binnen in de hal met trapopgang, trapkast met meterkast, een vaste kast en toiletruimte. De doorzon woonkamer is licht en ruim (ca. 3.45 x 8.50 m) en beschikt over een sfeervolle schouw en deur naar de achtertuin. De keuken (ca. 180 x 3.50 m) is in de basis ruim en eventueel bij de woonkamer te betrekken. Vanuit hier is ook de tuin bereikbaar.
De achtertuin is verrassend ruim voor deze locatie, biedt een achterom én een vrijstaande berging van ca. 10 m².

Eerste verdieping
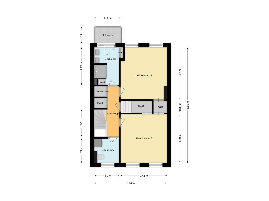
Op deze verdieping vind je twee ruime slaapkamers, beide met vaste kastruimte. De kamer aan de voorzijde is ca. 3.45 x 3.60 m, de kamer aan de achterzijde ca. 3.45 x 3.85 m. Daarnaast zijn er twee badkamers aanwezig: één aan de voorzijde met wastafel en toilet, en één aan de achterzijde met douche, wastafel en aansluiting voor wasapparatuur.

Tweede verdieping
De tweede verdieping biedt nog twee slaapkamers: één aan de voorzijde met dakkapel (ca. 2.75 x 3.35 m) en één aan de achterzijde met dakraam (ca. 2.80 x 3.25 m). Op de overloop bevindt zich de cv-ruimte.

Nieuwsgierig geworden?
Ben jij klaar om deze charmante woning nieuw leven in te blazen? Neem dan contact met ons op voor een bezichtiging. We laten het je graag zien!
+ Lees de volledige omschrijving

Kenmerken

Overdracht

Aangeboden sinds 13 juni 2025
Status Verkocht
Aanvaarding In overleg

Bouw

Soort woning Woonhuis
Bouwjaar 1901
Soort dak Schilddak

Oppervlakten en inhoud

Oppervlakte wonen 118 m²
Oppervlakte gebouwgebonden buitenruimte 3 m²
Oppervlakte externe bergruimte 10 m²
Perceel 127 m²
Inhoud 431 m³

Indeling

Aantal kamers 7
Aantal slaapkamers 4
Aantal badkamers 2
Badkamervoorzieningen Douche, wastafel, wasmachineaansluiting en toilet
Aantal woonlagen 3

Energie

Energielabel D
Isolatie Dakisolatie en gedeeltelijk dubbel glas
Verwarming Cv-ketel
Warm water Cv-ketel
Cv-ketel Nefit (combiketel uit 2013)

Buitenruimte

Ligging Aan rustige weg en in woonwijk
Tuin Achtertuin
Achtertuin 76 m² gelegen op het noorden met achterom

Bergruimte

Schuur/berging Vrijstaand steen
Voorzieningen Voorzien van elektra

Garage

Soort garage Geen garage

Plattegronden

360° foto's

Contact opnemen